Airbag Lowering Car Trailer Plans
- 3500kg ATM
- 2500kg Payload*
- Independent or load sharing suspension
- Complete Part & Cutting lists
- FREE storage box drawings
- Super low loading angle
- Instant digital download
- ADR compliant*
$199.00
Specifications
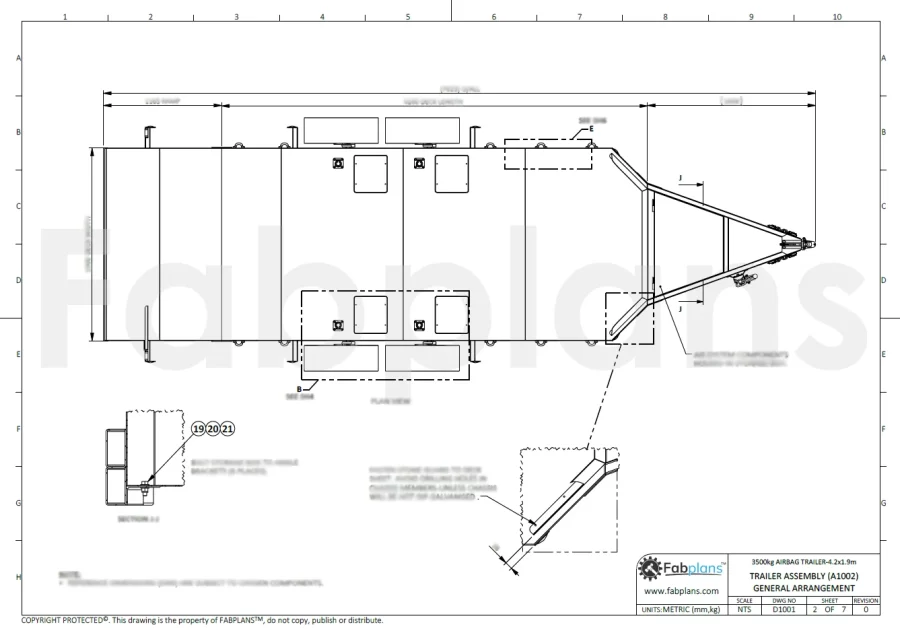
Deck Size
Maximum ATM
Tare Weight*
Payload*
Description - Airbag Car Trailer
Our Airbag Car Trailer plans are uniquely designed to allow for an extra low loading angle of 8 degrees. Perfectly suited for those often difficult to load vehicles such as sports cars, small tractors along with plant equipment. The unique air suspension system allows for the deck to rest on the ground while loading which is then pumped up to ride height for hauling.
Read more about air bagged trailers.
What's Included:
- Detailed Workshop Drawings (PDF document)
- Complete Cutting and Part lists
- DXF Files*
- Information Booklet
* CAD files not included.
* All drawings and dimensions are in metric.
* Tare and Payload are approximate and will depend on chosen components.
* DXF files are only included for sheet metal/plate parts.
* This trailer meets Australian Design Rule (ADR) 62/02 for drawbar compliance.
* Plans may vary from display images.
Reviews
| 5 star | 87 | 87% |
| 4 star | 13 | 13% |
| 3 star | 0% | |
| 2 star | 0% | |
| 1 star | 0% |
Sorry, no reviews match your current selections
Why Choose Fabplans
Fabplans are designed to work with commonly found material sizes and off-the-shelf parts. To make the build process even easier, we have compiled all the parts (Part List) and materials (Cutting List) so that you know exactly what is needed and can effectively cost your project.
Consider this, if you accidentally buy just one extra length of steel or make a single mistake (which is far less likely when you have detailed plans), the cost of that error could easily exceed the price of our plans.
Our plans are packed with research, hands-on experience, and practical know-how.












It would be nice if you included a parts list of the items you need to buy. Also, do you sell the control panel for the air bag system?
Perfect, great plans, easy to read and navigate.